Construction neuve - Terrain à construire par un architecte Archidvisor
Projet MAISON TOULOUSE réalisé par un architecte Archidvisor Projet MAISON TOULOUSE réalisé par un architecte Archidvisor

MAISON TOULOUSE
Construction neuve à Toulouse

Toulouse, France

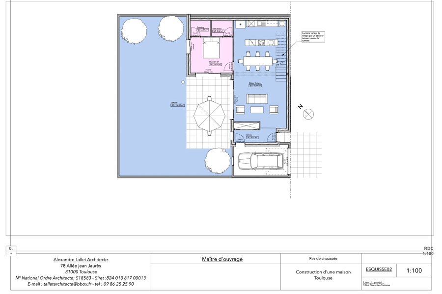
MAISON URBAINE A TOULOUSE
Définition d'un projet d'une mais on dans un contexte urbain.
Maison aux surface optimisée pour offrir un maximum de jardin.

Les détails du projet

Terrain à construire

140 m²

Livré en décembre 2023

Mission d'étude

Particulier

Construction neuve

250 000 €*

* Hors taxes et honoraires

Un projet réalisé par

Alexandre

Espéraza, France

Les autres projets de Alexandre

Pourquoi faire confiance à Archidvisor pour votre projet ?

Nos engagements

icon des architectes certifiés

Des professionnels vérifiés

Nous comptabilisons plus de 2 500 architectes, architectes d'intérieur, décorateurs, maîtres d'œuvre et paysagistes vérifiés un à un par notre équipe.

icon un accompagnement de A à Z

Un accompagnement de A à Z

Nos Experts Travaux vous aident à trouver le Concepteur (architecte, architecte d'intérieur, décorateur, maître d'œuvre, paysagiste) idéal et suivent l'évolution de votre projet. Bénéficiez également de la Protection Juridique Travaux MMA offerte et de nombreuses garanties exclusives.

icon 3 rendez-vous gratuits

3 rendez-vous gratuits

Pas de mauvaise surprise. Rencontrez gratuitement et sans engagement trois Concepteurs et recevez en quelques jours leur proposition d'accompagnement.

Trouvez le professionnel le plus adapté à votre projet !

Trouver mon Concepteur

×