Rénovation - Maison individuelle par un architecte d'intérieur Archidvisor
Projet L'Escale Familiale du Bassin réalisé par un architecte d'intérieur Archidvisor Projet L'Escale Familiale du Bassin réalisé par un architecte d'intérieur Archidvisor

L'Escale Familiale du Bassin
Rénovation à Arès

Arès, France

J'ai été sollicitée par Josefa pour la rénovation complète de sa maison de vacances sur le Bassin d'Arcachon.

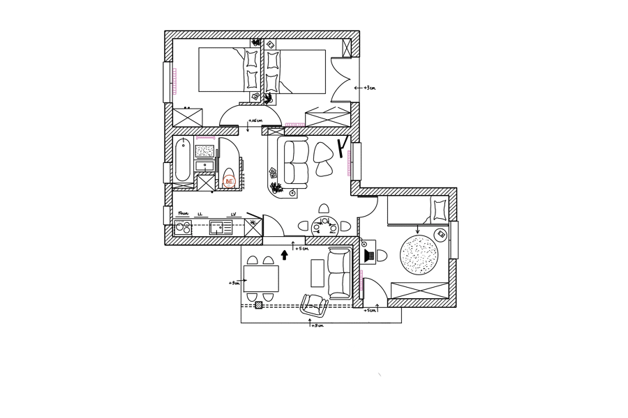
Le projet consistait à revoir entièrement l’agencement de cette maison de plain pied, qu'elle avait faite construire en 1986 avec son mari. La maison de 48 m2 était composée de 3 pièces et disposait d’un terrain de 300m2. Elle y séjournait ponctuellement pour les vacances et la prêtait fréquemment à ses proches. Cependant, la maison n’était pas optimisée pour cet usage : espace perdu, pièces mal distribuées et mauvaise circulation étaient à l’origine d’un manque d’intimité et de tensions entre les co-habitants.

L’objectif était de repenser chaque m² pour un espace optimisé, plus agréable à vivre ensemble et adapté à une éventuelle location saisonnière.

La mission était la suivante :
- Créer une chambre supplémentaire
- Optimiser la circulation et la distribution des pièces
- Rendre la cuisine plus fonctionnelle
- Rafraîchir la déco : conviviale, chaleureuse, personnalisée mais universelle
- Améliorer le confort de la terrasse et potentiellement séparer les WC.

J'ai accompagné Josefa de la conception à la préparation de son chantier :
1. ANALYSE DE L’EXISTANT (Métré / État des lieux / Cahier des Charges)
J’analyse, je comprends et j’anticipe les contraintes de l’espace, ainsi que les besoins des habitants.
2. ÉTUDE DU POTENTIEL (Avant-projet sommaire - APS)
J’étudie le potentiel de l’habitation via plusieurs propositions, répondant au cahier des charges et aux contraintes du lieu.
3. AFFINAGE DU PROJET (Avant-projet détaillé - APD)
J’affine la solution choisie, en étudiant en détail l’agencement, le mobilier, la décoration et la lumière.
4. PRÉPARATION DU CHANTIER (Dossier de consultation des entreprises (DCE) / Shopping List)
Je prépare le chantier : descriptif complet des travaux pour appel d’offre et analyse des devis entrepreneurs, shopping list détaillée.

Je n'ai pas effectué le suivi de chantier en raison de la localisation du chantier, mais je propose cette prestation pour les projets de rénovation situés en Provence.

Les détails du projet

Maison individuelle

48 m²

Livré en juillet 2026

Mission de conception

Particulier

Rénovation

Un projet réalisé par

Juliette

Marseille 6e Arrondissement, France

Pourquoi faire confiance à Archidvisor pour votre projet ?

Nos engagements

icon des professionnels certifiés

Des professionnels certifiés

Nous comptabilisons plus de 2 500 architectes, architectes d'intérieur, décorateurs, maîtres d'œuvre et paysagistes vérifiés un à un par notre équipe pour vous garantir des travaux réussis et sereins.

icon un accompagnement de A à Z

Un accompagnement de A à Z

Nos Experts Travaux vous aident à trouver les professionnels idéaux et suivent l'évolution de votre projet. Bénéficiez également de la Protection Juridique Travaux MMA offerte et de nombreuses garanties exclusives.

icon 3 rendez-vous gratuits

3 rendez-vous gratuits

Pas de mauvaise surprise. Rencontrez gratuitement et sans engagement trois professionnels et recevez en quelques jours leur proposition d'accompagnement.

Trouvez l'architecte d'intérieur le plus adapté à votre projet !

Trouver mon architecte d'intérieur

×