Rénovation - Maison individuelle par un architecte d'intérieur Archidvisor
Projet Projet Chablis réalisé par un architecte d'intérieur Archidvisor Projet Projet Chablis réalisé par un architecte d'intérieur Archidvisor

Projet Chablis
Rénovation à Bourg-en-Bresse

Bourg-en-Bresse, France

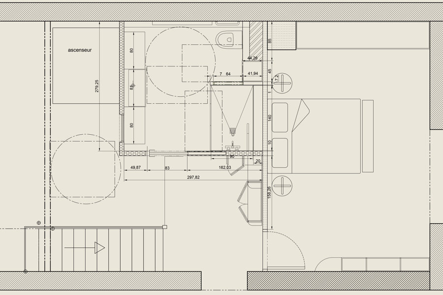
Anticiper l’avenir, c’était la volonté de mes clients. Intégrer une plateforme élévatrice à leur maison, pour qu’elle reste fonctionnelle et accueillante dans les années à venir. Une transformation qui touche plusieurs espaces et qui s’accompagne d’un vrai travail architectural.

La création d’une trémie sur deux niveaux a guidé la restructuration globale. Les circulations ont été repensées, les espaces comme les sanitaires, une salle d’eau PMR ont été intégrés dans le respect des normes PMR, pour allier confort et accessibilité.

Le fil conducteur ? La montagne, un chalet à Bourg-en-Bresse… Le bois de chablis apporte chaleur et authenticité, les peintures blanches valorisent la lumière et les matériaux nobles rappellent la pureté des paysages alpins. Chaque pièce trouve ainsi son identité tout en conservant cette atmosphère commune, conviviale et rassurante.

Un projet où la création des espaces et le suivi de chantier s’entrelacent, pour offrir à mes clients un cadre de vie à la fois esthétique, pratique et pérenne.

Les détails du projet

Maison individuelle

500 m²

En cours de réalisation

Mission complète (conception, démarches administratives et suivi de chantier)

Particulier

Rénovation

200 000 €*

* Hors taxes et honoraires

Un projet réalisé par

Charline

Grézieu-la-Varenne, France

Les autres projets de Charline

Pourquoi faire confiance à Archidvisor pour votre projet ?

Nos engagements

icon des professionnels certifiés

Des professionnels certifiés

Nous comptabilisons plus de 2 500 architectes, architectes d'intérieur, décorateurs, maîtres d'œuvre et paysagistes vérifiés un à un par notre équipe pour vous garantir des travaux réussis et sereins.

icon un accompagnement de A à Z

Un accompagnement de A à Z

Nos Experts Travaux vous aident à trouver les professionnels idéaux et suivent l'évolution de votre projet. Bénéficiez également de la Protection Juridique Travaux MMA offerte et de nombreuses garanties exclusives.

icon 3 rendez-vous gratuits

3 rendez-vous gratuits

Pas de mauvaise surprise. Rencontrez gratuitement et sans engagement trois professionnels et recevez en quelques jours leur proposition d'accompagnement.

Trouvez l'architecte d'intérieur le plus adapté à votre projet !

Trouver mon architecte d'intérieur

×