Rénovation - Maison individuelle par un architecte Archidvisor
Projet Rénovation complète d’une maison réalisé par un architecte Archidvisor Projet Rénovation complète d’une maison réalisé par un architecte Archidvisor

Rénovation complète d’une maison
Rénovation à Ouroux-en-Morvan

Ouroux-en-Morvan, France

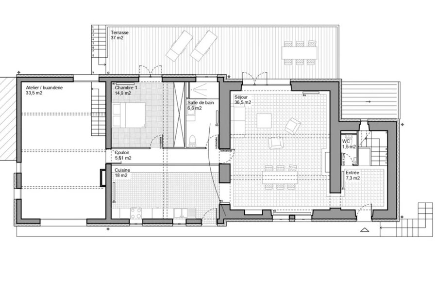
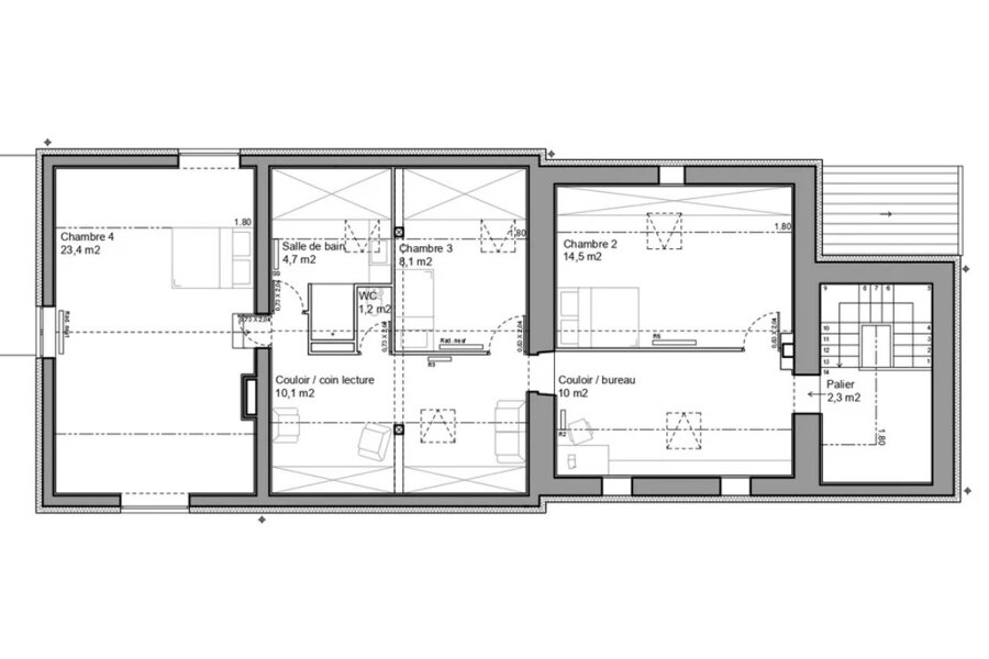
Rénovation d’une maison comprenant :

le réagencement des pièces du rez-de-chaussée afin d’obtenir des pièces plus spacieuses et lumineuses et d’optimiser la communication des pièces entre elles

l’aménagement des combles perdus pour augmenter la surface habitable de la maison comprenant la création d’un escalier entre les deux niveaux et la création de fenêtres de toit

l’ouverture de la façade nord-est sur la vue dégagée par la création d’un accès direct à l’extérieur et la création d’une terrasse surélevée

l’amélioration du confort thermique de la maison (isolation, chauffage, ventilation, confort d’été)

Les détails du projet

Maison individuelle

160 m²

En cours de réalisation

Mission de conception

Particulier

Rénovation

Un projet réalisé par

Justine

Beire-le-Châtel, France

Les autres projets de Justine

Pourquoi faire confiance à Archidvisor pour votre projet ?

Nos engagements

icon des architectes certifiés

Des professionnels vérifiés

Nous comptabilisons plus de 2 500 architectes, architectes d'intérieur, décorateurs, maîtres d'œuvre et paysagistes vérifiés un à un par notre équipe.

icon un accompagnement de A à Z

Un accompagnement de A à Z

Nos Experts Travaux vous aident à trouver le Concepteur (architecte, architecte d'intérieur, décorateur, maître d'œuvre, paysagiste) idéal et suivent l'évolution de votre projet. Bénéficiez également de la Protection Juridique Travaux MMA offerte et de nombreuses garanties exclusives.

icon 3 rendez-vous gratuits

3 rendez-vous gratuits

Pas de mauvaise surprise. Rencontrez gratuitement et sans engagement trois Concepteurs et recevez en quelques jours leur proposition d'accompagnement.

Trouvez le professionnel le plus adapté à votre projet !

Trouver mon Concepteur

×